Accueil / Actualités / Commune de NOTH : Terrains à bâtir au lotissement de VILLARD

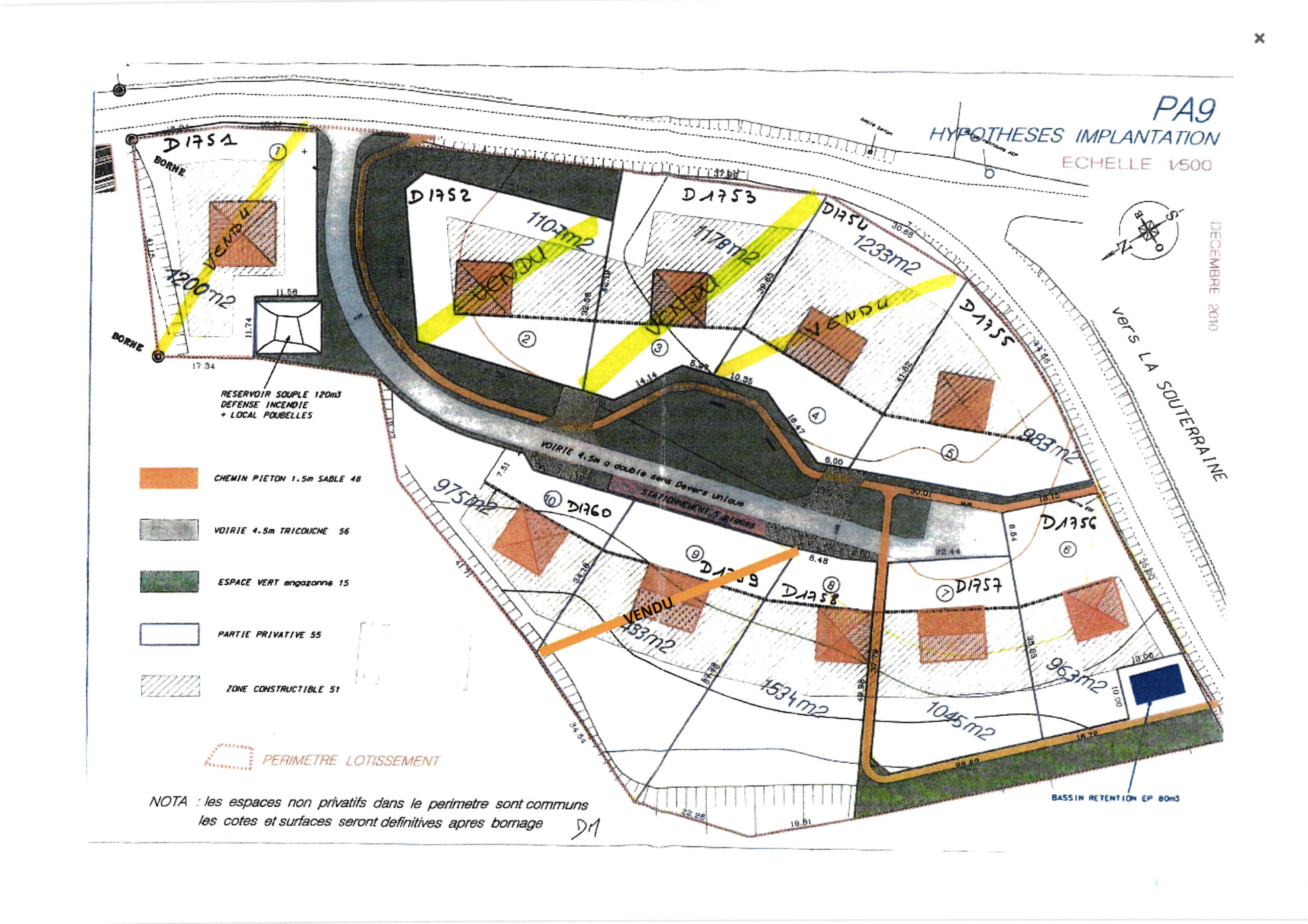
Commune de NOTH : Terrains à bâtir au lotissement de VILLARD

Vente de plusieurs lots constructibles :
- 10 minutes de la Souterraine proche RN 145 Environnement calme et verdoyant

Prix du terrain : 12€ TTC le m² viabilisé

5 lots disponibles.

Pour toutes informations complémentaires, veuillez contacter la Mairie de NOTH :
16 Route du Gôt 23300 NOTH 05.55.63.13.12

mairiedenoth@wanadoo.fr